Description
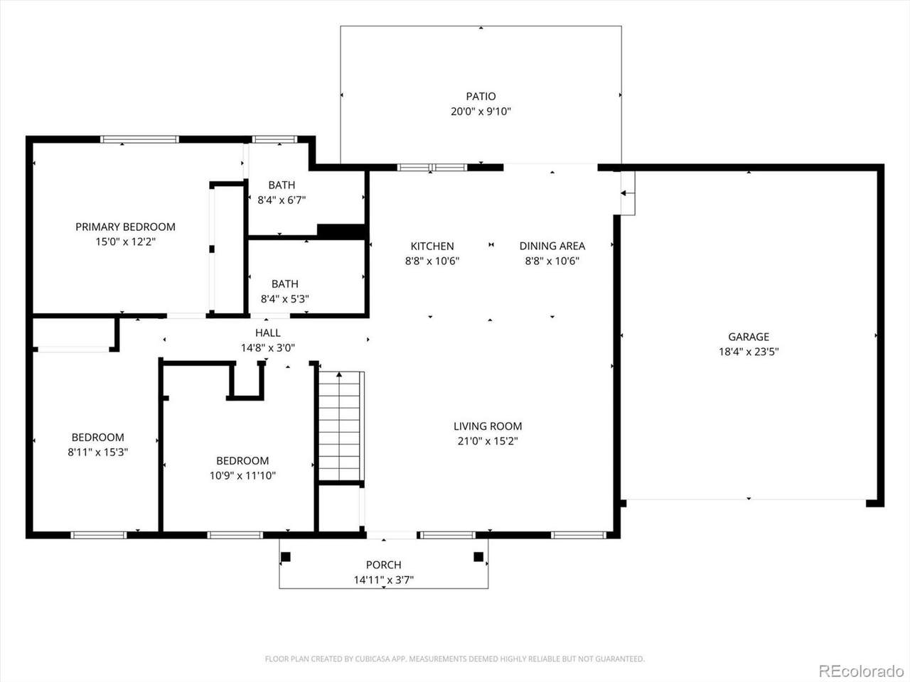
Completely remoded turnkey home located on a large private lot in a cul-de sac. Open floor plan, perfect for entertaining. Light & bright with lots of windows. Brand NEW interior & exterior paint. NEW LVP flooring throughout the entire main floor & bathrooms. NEW pad & carpet. NEW interior doors & hardware. NEW window coverings. New main electrical panel. New central A/C and newer funrace. All NEW electrcal, plumbing and hardware fixtures througout. Enter the welcoming front door into a foyer and into the large family room with vaulted ceilings. Spacious dining room with sliding glass door accessing the large backyard patio and yard. Open eat-in-kitchen and island sitting for four, NEW soft close cabinets, slab quartz countertops with waterfall end cap. NEW stainless steel applainces and large undermount single bowl SS sink. Main floor full bathroom with NEW vanity, quartz countertop, NEW fixtures including bath hardware & fixtures, toilet, bathtub and custom tiled tub/shower surround. Additional two main floor secondary bedrooms and a large primary suite with en-suite 3/4 bathroom with custom tile and euro glass frameless shower door. The fully finished basement has tall ceilings and a welcoming game area with custom niche, self serving bar area with custom soft close cabinets, slab quartz and bar refrigerator. Connecting to the game room is a large great room area. Walk in laundry room with brand new washer and dryer. Additional storage area. Two huge bedrooms both with NEW eggress windows allowing in a ton of natural light. Professionally landscaped fenced in yard with both front and back sprinkler systems and mature landscaping. Attached oversized 2 car garage with brand NEW concrete floor and NEW oversized concrete driveway with recreational parking on the side of the home and more in the back yard (large gate access). Close to everything including schools, trails, parks, shopping, restaurants, major highways and throughfares plus much more!!!
-
5BEDS
-
0.2ACRES
-
3BATHS
-
01/2 BATHS
-
2,267SQFT
-
$285$/SQFT
School Information
Offered by MB Denver Colorado Realty Source.Description
Completely remoded turnkey home located on a large private lot in a cul-de sac. Open floor plan, perfect for entertaining. Light & bright with lots of windows. Brand NEW interior & exterior paint. NEW LVP flooring throughout the entire main floor & bathrooms. NEW pad & carpet. NEW interior doors & hardware. NEW window coverings. New main electrical panel. New central A/C and newer funrace. All NEW electrcal, plumbing and hardware fixtures througout. Enter the welcoming front door into a foyer and into the large family room with vaulted ceilings. Spacious dining room with sliding glass door accessing the large backyard patio and yard. Open eat-in-kitchen and island sitting for four, NEW soft close cabinets, slab quartz countertops with waterfall end cap. NEW stainless steel applainces and large undermount single bowl SS sink. Main floor full bathroom with NEW vanity, quartz countertop, NEW fixtures including bath hardware & fixtures, toilet, bathtub and custom tiled tub/shower surround. Additional two main floor secondary bedrooms and a large primary suite with en-suite 3/4 bathroom with custom tile and euro glass frameless shower door. The fully finished basement has tall ceilings and a welcoming game area with custom niche, self serving bar area with custom soft close cabinets, slab quartz and bar refrigerator. Connecting to the game room is a large great room area. Walk in laundry room with brand new washer and dryer. Additional storage area. Two huge bedrooms both with NEW eggress windows allowing in a ton of natural light. Professionally landscaped fenced in yard with both front and back sprinkler systems and mature landscaping. Attached oversized 2 car garage with brand NEW concrete floor and NEW oversized concrete driveway with recreational parking on the side of the home and more in the back yard (large gate access). Close to everything including schools, trails, parks, shopping, restaurants, major highways and throughfares plus much more!!!
Related Properties
Based on information submitted to the MLS GRID as of 2025-11-17T10:22:27.243 (date and time MLS Grid Data was obtained). All data is obtained from various sources and may not have been verified by broker or MLS GRID. Supplied Open House information is subject to change without notice. All information should be independently reviewed and verified for accuracy. Properties may or may not be listed by the office/agent presenting the information.
© 2025 METROLIST, INC., DBA RECOLORADO® – All Rights Reserved
6455 S. Yosemite St., Suite 500
Greenwood Village, CO 80111 USA
