Description
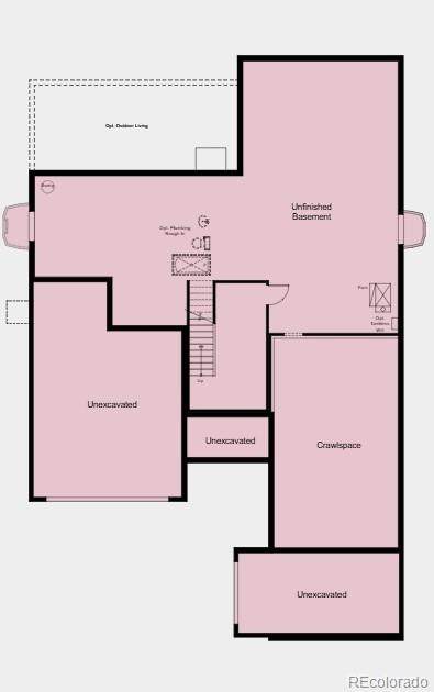
What's Special: Multi-Gen Suite | Dedicated Home Office | Fireplace | Large Kitchen Island | Loft. New Construction March Completion! Built by America's Most Trusted Homebuilder. Welcome to the Steamboat at 16596 W 93rd Place in Trailstone. This beautifully designed new home offers an elegant balance of shared spaces and private retreats, making it easy for everyone to feel at home. From the impressive, vaulted foyer, you'll discover a multi-generational suite complete with its own living room, kitchenette, bedroom, bathroom, laundry, and private garage access, perfect for comfort and independence. The main floor invites connection with an open kitchen featuring a center island, casual dining area, and a great room with a cozy fireplace. A private study provides space for work or creativity, and the covered outdoor living area is ideal for relaxing or entertaining. Upstairs, the primary wing feels like a true oasis with two walk-in closets and a spa-inspired bath with a freestanding tub and large shower. Three additional bedrooms, a spacious loft, and an oversized laundry room ensure plenty of room for everyone. Plus, the unfinished basement offers endless possibilities for storage, a home gym, or future expansion. Discover Trailstone, a new home community on the edge of the Rocky Mountains in Arvada, CO. Just off Candelas Parkway and only 15 miles from Boulder, this neighborhood offers stunning single-family homes with spacious backyards and incredible views of Downtown Denver, the Rocky Mountains, and Standley Lake. With planned amenities like an outdoor pool and pickleball courts, every day is an opportunity to explore a new path at Trailstone. Additional Highlights Include: Fireplace at great room, study in place of flex, double doors at study, sliding door at great room, free standing tub at primary bath, covered outdoor living, additional sink at secondary bath, and unfinished basement. Photos are for representative purposes only. MLS#4000565
-
4BEDS
-
0.16ACRES
-
3BATHS
-
11/2 BATHS
-
4,950SQFT
-
$243$/SQFT
School Information
Offered by RE/MAX Professionals.Description
What's Special: Multi-Gen Suite | Dedicated Home Office | Fireplace | Large Kitchen Island | Loft. New Construction March Completion! Built by America's Most Trusted Homebuilder. Welcome to the Steamboat at 16596 W 93rd Place in Trailstone. This beautifully designed new home offers an elegant balance of shared spaces and private retreats, making it easy for everyone to feel at home. From the impressive, vaulted foyer, you'll discover a multi-generational suite complete with its own living room, kitchenette, bedroom, bathroom, laundry, and private garage access, perfect for comfort and independence. The main floor invites connection with an open kitchen featuring a center island, casual dining area, and a great room with a cozy fireplace. A private study provides space for work or creativity, and the covered outdoor living area is ideal for relaxing or entertaining. Upstairs, the primary wing feels like a true oasis with two walk-in closets and a spa-inspired bath with a freestanding tub and large shower. Three additional bedrooms, a spacious loft, and an oversized laundry room ensure plenty of room for everyone. Plus, the unfinished basement offers endless possibilities for storage, a home gym, or future expansion. Discover Trailstone, a new home community on the edge of the Rocky Mountains in Arvada, CO. Just off Candelas Parkway and only 15 miles from Boulder, this neighborhood offers stunning single-family homes with spacious backyards and incredible views of Downtown Denver, the Rocky Mountains, and Standley Lake. With planned amenities like an outdoor pool and pickleball courts, every day is an opportunity to explore a new path at Trailstone. Additional Highlights Include: Fireplace at great room, study in place of flex, double doors at study, sliding door at great room, free standing tub at primary bath, covered outdoor living, additional sink at secondary bath, and unfinished basement. Photos are for representative purposes only. MLS#4000565
Based on information submitted to the MLS GRID as of 2025-11-13T11:23:16.54 (date and time MLS Grid Data was obtained). All data is obtained from various sources and may not have been verified by broker or MLS GRID. Supplied Open House information is subject to change without notice. All information should be independently reviewed and verified for accuracy. Properties may or may not be listed by the office/agent presenting the information.
© 2025 METROLIST, INC., DBA RECOLORADO® – All Rights Reserved
6455 S. Yosemite St., Suite 500
Greenwood Village, CO 80111 USA
