Description
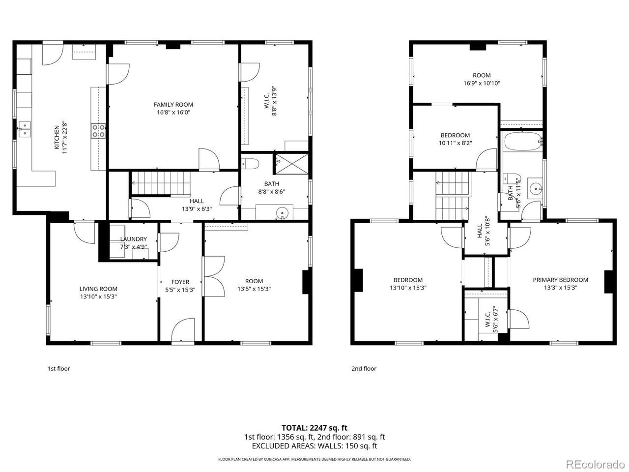
1757 W 34th Ave/3420 Quivas by appointment ONLY!!! Zoned U-TU-B Property is sold AS IS Call Peter (303)246-7383 Unique investment opportunity!! Corner double lot in highly sought after Lower Highland in Denver. (loHi) This lot has two separate dwellings. The 2-story main house facing 34th Ave has three bedrooms and two baths. It is structurally compromised and will eventually need to be rebuilt. However, because of its current location zero feet setback from the sidewalk on the Quivas Street side, remodeling while leaving certain facade walls intact might be preferable to a full teardown. The second home, formerly a grocery store, facing Quivas Street has been rented as a Corporate Housing unit. This two-bed, one-bath single-story home, approximately 1,000 sf has an open loft layout with a separate attached sun porch currently used as a second bedroom. (non conforming as it does not have a closet) Between both structures is a cobblestone-paved courtyard. The property has a relatively new three car garage accessible from the alley on Quivas Street. and through the courtyard by foot. The legal address for both is 1757 W 34th Ave. While the back, former grocery store is named 3420 Quivas St on Google Maps, it is technically 1757 W 34th Ave #2. Currently both units are rented on a monthly basis. The main house is rented at $2600/month and the former grocery store is rented at $3150/month. This provides a total income of $5,750 a month for any investor while they determine changes and procure permits. All information, claims and statements regarding the use/zoning and potential improvement of this property must be verified by the interested party and are not guaranteed by the Seller/Listing Agent. Attached are floor plans of both units and photos of Quivas property only.
-
0BEDS
-
0.16ACRES
-
0BATHS
-
01/2 BATHS
Offered by 8z Real Estate.Description
1757 W 34th Ave/3420 Quivas by appointment ONLY!!! Zoned U-TU-B Property is sold AS IS Call Peter (303)246-7383 Unique investment opportunity!! Corner double lot in highly sought after Lower Highland in Denver. (loHi) This lot has two separate dwellings. The 2-story main house facing 34th Ave has three bedrooms and two baths. It is structurally compromised and will eventually need to be rebuilt. However, because of its current location zero feet setback from the sidewalk on the Quivas Street side, remodeling while leaving certain facade walls intact might be preferable to a full teardown. The second home, formerly a grocery store, facing Quivas Street has been rented as a Corporate Housing unit. This two-bed, one-bath single-story home, approximately 1,000 sf has an open loft layout with a separate attached sun porch currently used as a second bedroom. (non conforming as it does not have a closet) Between both structures is a cobblestone-paved courtyard. The property has a relatively new three car garage accessible from the alley on Quivas Street. and through the courtyard by foot. The legal address for both is 1757 W 34th Ave. While the back, former grocery store is named 3420 Quivas St on Google Maps, it is technically 1757 W 34th Ave #2. Currently both units are rented on a monthly basis. The main house is rented at $2600/month and the former grocery store is rented at $3150/month. This provides a total income of $5,750 a month for any investor while they determine changes and procure permits. All information, claims and statements regarding the use/zoning and potential improvement of this property must be verified by the interested party and are not guaranteed by the Seller/Listing Agent. Attached are floor plans of both units and photos of Quivas property only.
Digital Millennium Copyright Act
Based on information submitted to the MLS GRID as of 2026-03-17T08:22:18.347 UTC. All data is obtained from various sources and may not have been verified by broker or MLS GRID. Supplied Open House information is subject to change without notice. All information should be independently reviewed and verified for accuracy. Properties may or may not be listed by the office/agent presenting the information.
© 2026 METROLIST, INC., DBA RECOLORADO® – All Rights Reserved
6455 S. Yosemite St., Suite 500
Greenwood Village, CO 80111 USA
