Description
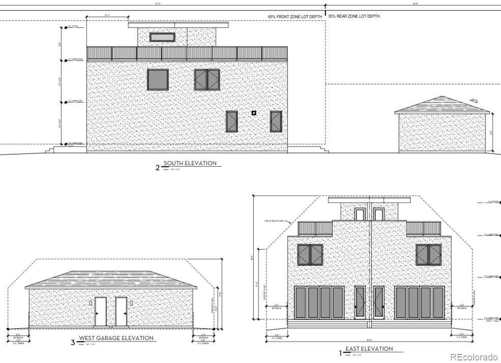
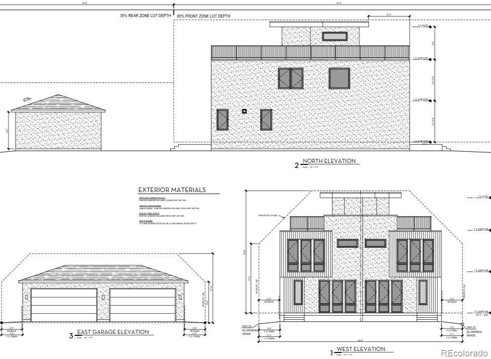
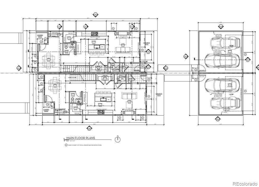
An exceptionally rare opportunity to acquire a truly build-ready lot in one of Denver’s most sought-after neighborhoods. This 6,250-square-foot parcel is zoned E-TU-C. The demo of the existing house is already complete, footers are in, and all of the other heavy lifting has been done. Over $150,000 already into the build. The lot is permit-ready, with extensive due diligence and preparation completed, saving a future buyer significant time, cost, and uncertainty. Included are architectural drawings, survey, soil reports, and all critical pre-construction work required to move efficiently toward permitting. Opportunities like this where a buyer can step in and build immediately rather than wait months or years are increasingly rare. The surrounding block showcases active redevelopment and luxury construction, including high-end duplex's nearby, reinforcing both the upward trajectory of values and the demand for quality new builds in the area. This is a street where modern architecture and thoughtful development are already setting the tone. Located in Harvard Gulch, this site offers the perfect blend of neighborhood charm and urban convenience. Enjoy immediate access to Harvard Gulch Park and Golf Course, tree-lined streets, and a strong sense of community all while being minutes from Wash Park, Old South Pearl, South Broadway, and some of Denver’s best dining, coffee, and boutique shopping. Easy connectivity to downtown and DTC makes this location as practical as it is desirable. Whether you’re a builder, developer, or end-user looking to create something exceptional, this is a turnkey land opportunity in a proven, high-demand neighborhood where vision can become reality without the usual delays.
-
0BEDS
-
0.14ACRES
-
0BATHS
-
01/2 BATHS
Offered by Alpha Real Estate Associates LLC.Description
An exceptionally rare opportunity to acquire a truly build-ready lot in one of Denver’s most sought-after neighborhoods. This 6,250-square-foot parcel is zoned E-TU-C. The demo of the existing house is already complete, footers are in, and all of the other heavy lifting has been done. Over $150,000 already into the build. The lot is permit-ready, with extensive due diligence and preparation completed, saving a future buyer significant time, cost, and uncertainty. Included are architectural drawings, survey, soil reports, and all critical pre-construction work required to move efficiently toward permitting. Opportunities like this where a buyer can step in and build immediately rather than wait months or years are increasingly rare. The surrounding block showcases active redevelopment and luxury construction, including high-end duplex's nearby, reinforcing both the upward trajectory of values and the demand for quality new builds in the area. This is a street where modern architecture and thoughtful development are already setting the tone. Located in Harvard Gulch, this site offers the perfect blend of neighborhood charm and urban convenience. Enjoy immediate access to Harvard Gulch Park and Golf Course, tree-lined streets, and a strong sense of community all while being minutes from Wash Park, Old South Pearl, South Broadway, and some of Denver’s best dining, coffee, and boutique shopping. Easy connectivity to downtown and DTC makes this location as practical as it is desirable. Whether you’re a builder, developer, or end-user looking to create something exceptional, this is a turnkey land opportunity in a proven, high-demand neighborhood where vision can become reality without the usual delays.
Related Properties
Digital Millennium Copyright Act
Based on information submitted to the MLS GRID as of 2026-03-15T16:23:13.247 UTC. All data is obtained from various sources and may not have been verified by broker or MLS GRID. Supplied Open House information is subject to change without notice. All information should be independently reviewed and verified for accuracy. Properties may or may not be listed by the office/agent presenting the information.
© 2026 METROLIST, INC., DBA RECOLORADO® – All Rights Reserved
6455 S. Yosemite St., Suite 500
Greenwood Village, CO 80111 USA
